PRIMO ED ULTIMO PIANO – INDIPENDENZA TOTALE – ZERO SPESE

€ 119.900

Dettagli

Riferimento
Riferimento
604410
Tipologia
Tipologia
Appartamento
Comune
Comune
Ciserano
Contratto
Contratto
in vendita
Superficie
Superficie
65 m2
Locali
Locali
2
Camere
Camere
1
Cucina
Cucina
A vista
Posti Auto
Posti Auto
1
Giardino
Giardino
Privato
Anno Ristrutturazione
Anno Ristrutturazione
2025
Piano
Piano
1
Vista
Vista
Giardino
Infissi
Infissi
Doppio Vetro - PVC
Classe Energetica
Classe Energetica
In attesa di certificazione

Descrizione

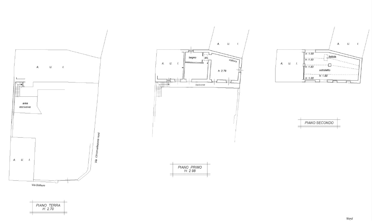
In piccola palazzina di sole 3 famiglie, proponiamo unico appartamento al primo ed ultimo piano, una soluzione rara per chi cerca tranquillità, privacy e ambienti luminosi. L’accesso è totalmente indipendente tramite scala privata, che conduce a un grande balcone vivibile esteso su tutta la metratura della casa: uno spazio esterno perfetto per stare all'aperto o godersi il sole. L’abitazione, praticamente nuova, è composta da: Soggiorno luminoso con cucina a vista, disimpegno, camera matrimoniale, bagno e posto auto riservato Assolutamente senza spese condominiali, ideale per chi desidera un appartamento moderno, riservato e in una piccola realtà abitativa. Se vuoi c'è anche un box e lo puoi acquistare. Un grande sottotetto di proprietà. Punti di forza: Ristrutturazione recentissima, Ottima distribuzione degli spazi, Nessuna spesa condominiale, Massima indipendenza, Soluzione ideale per chi cerca privacy, comodità e ambienti moderni. Perfetto per single, giovani coppie o come investimento. Per info chiama il numero 349/8332945 Da oltre 32 anni, Lo Studio Casa Verdello continua a perfezionare i suoi servizi immobiliari effettuando regolarmente corsi di formazione al fine di restare sempre aggiornati alle numerose e più recenti e vigenti normative. La sua mission è la compravendita e l'affitto di immobili, fungendo da mediatore tra le parti nel corso della trattativa. Lo Studio Casa Verdello, inoltre, al fine di erogare la massima qualità del servizio, effettua una accurata selezione, proponendo al cliente solo le soluzioni che soddisfano le sue esigenze ottimizzando tempi e risorse per una efficiente ed efficace conclusione dell’affare. Lo Studio Casa Verdello offre ai suoi clienti servizi che includono la costante fornitura di informazioni complete, la predisposizione di tutta la documentazione contrattuale per le parti interessate, i servizi legali, l’assistenza notarile, la predisposizione dell’assicurazione e tutte le successive ed eventuali attività di post vendita. Studio Casa Verdello, via Donizetti, 9 Tel 035/872605…….comprare e vendere con noi è tutta un’altra cosa…..

Caratteristiche

  •  Balcone
  •  Terrazzo
  •  Cantina
  •  Mansarda
  •  Ripostiglio
  •  Lavanderia
  •  Camino
  •  Idromassaggio
  •  Accesso disabili
  •  Porta Blindata
  •  Allarme
  •  Cancello Elettrico
  •  Videocitofono
  •  Ascensore
  •  Piscina
  •  Campo da tennis
  •  Palestra