A Verdello – Ufficio di Prestigio Pronto all'Uso

€ 900

Dettagli

Riferimento
Riferimento
605996
Tipologia
Tipologia
Ufficio
Comune
Comune
Verdello
Contratto
Contratto
in affitto
Superficie
Superficie
88 m2
Locali
Locali
3
Bagni
Bagni
1
Cucina
Cucina
Abitabile
Box
Box
Singolo
Giardino
Giardino
Comune
Condizioni
Condizioni
Ottimo
Classe
Classe
Signorile
Anno Costruzione
Anno Costruzione
2010
Piano
Piano
1
Vista
Vista
Giardino
Riscaldamento
Riscaldamento
Autonomo
Impianto Riscaldamento
Impianto Riscaldamento
Teleriscaldamento
Climatizzazione
Climatizzazione
Freddo/Caldo
Infissi
Infissi
Triplo Vetro - PVC
Classe Energetica
Classe Energetica
B - DL 192 del 19/08/05
Indice Prestazione
Indice Prestazione
263,5 Kwh/mc

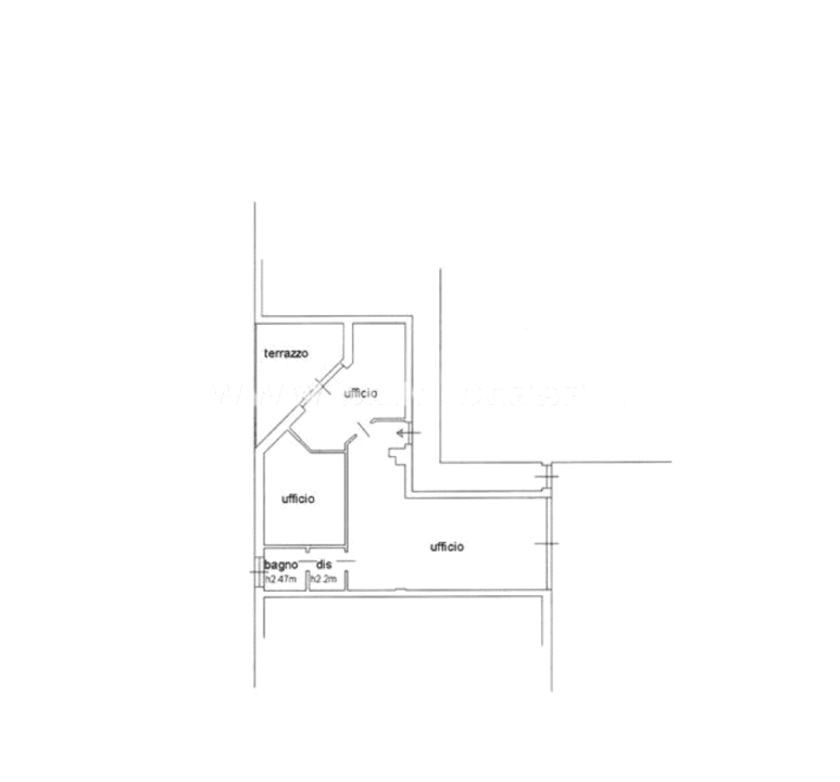
Descrizione

Sei un professionista e vuoi dare alla tua attività l’immagine che merita? Questo è lo spazio giusto per fare la differenza. Proponiamo elegante ufficio/studio professionale in posizione strategica, pronto all’uso e in condizioni impeccabili: entri e inizi subito a lavorare, senza alcun intervento necessario (nemmeno l’imbiancatura). IVA di legge 22%. Perché sceglierlo: Ambiente principale ampio e luminosissimo, valorizzato da grandi finestre, secondo ufficio riservato con affaccio su terrazzo, Bagno con antibagno separato, pratico e funzionale, Porta blindata e accesso da corridoio servito da ascensore Dotato di climatizzazione e comfort moderni, offre un contesto curato e rappresentativo, perfetto per accogliere i tuoi clienti con professionalità e rafforzare la tua immagine. Una soluzione ideale per avvocati, notai, architetti, tecnici e professionisti del settore sanitario che cercano visibilità, praticità e prestigio in un’unica proposta. Contattaci subito per una visita: un’opportunità pronta da cogliere. Studio casa Verdello 035/872605 Verdello è una località strategica grazie alla SS42 che collega Treviglio a Bergamo, e alla sua stazione ferroviaria che offre collegamenti rapidi con Bergamo, Milano e Brescia. A soli 5 km verso nord-est si trova il casello autostradale di Dalmine (A4 MI-VE), mentre a 7 km verso sud-ovest quello di Capriate San Gervasio. Da oltre 25 anni, lo Studio Casa Verdello offre servizi immobiliari di eccellenza, aggiornando continuamente il proprio staff con corsi di formazione per garantire un servizio conforme alle normative vigenti. La nostra missione è accompagnare il cliente in tutte le fasi della compravendita o locazione immobiliare, facilitando l’accordo tra le parti e ottimizzando tempi e risorse per un esito efficace e soddisfacente. I nostri servizi includono: Consulenza continua e trasparente. Predisposizione della documentazione contrattuale, Consulenza assicurativa. Supporto post-vendita - Per maggiori informazioni, contattateci: Studio Casa Verdello Via Donizetti, 9 - Tel. 035/872605 Comprare e vendere con noi è tutta un'altra cosa....

Caratteristiche

  •  Balcone
  •  Terrazzo
  •  Cantina
  •  Accesso disabili
  •  Porta Blindata
  •  Allarme
  •  Cancello Elettrico
  •  Reception
  •  Antincendio